L’idea per rifare “Il fare”: diventerebbe Gallarate City Mall
Clhnpl, operatore di real estate, ha attivato un nuovo sito dedicato, presentando l'idea. Si conferma la modifica delle aree di parcheggio, da cui partirebbe l'intervento
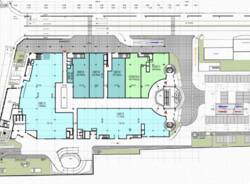
Che aspetto potrebbe avere in futuro “Il fare”, il centro commerciale chiuso da quindici anni a Gallarate?
Compaiono online i primi render del progetto di rifacimento della struttura di viale Lombardia.
Nuovo nome commerciale: Gallarate City Mall, nuovo brand – ovviamente – per prendere il posto del centro commerciale simbolo del maggior fallimento di operazione urbanistica visto a Gallarate, che durò solo un paio di anni.
I render vengono dal sito dedicato al progetto, attivato da Clhnpl (operatore di real estate con grandi interventi soprattutto su Milano), su cui è disponibile anche come pdf scaricabile per chi fosse interessato a inserirsi nell’operazione, avviata con l’acquisto per 1,3 milioni della vecchia struttura, passata dall’asta fallimentare con diversi ribassi.
Le planimetrie confermano le modifiche previste ai parcheggi, di cui pochi giorni fa parlava l’assessore Sandro Rech, anticipando il possibile inizio dei lavori a primavera 2026, proprio da questo settore dell’immobile.
Tra le altre idee c’è una pista di go-kart al piano 1, insieme ad un’area food. Tra piano 0 e piano -1 invece le unità commerciali (di piccole e medie dimensioni, come da inquadramento urbanistico) compresa – anche qui – l’immancabile offerta food.

La community di VareseNews
Loro ne fanno già parte
Ultimi commenti
lenny54 su Entrano in vigore le nuove tariffe "metropolitane", Saronnese e Busto più vicine a Milano
Felice su Fucile d'assalto e mitragliette nella casa dell'ex ispettore di Malpensa
lenny54 su In vendita casa Bossi, villa simbolo della "Lega di una volta"
lauralaura su Ospedali troppo caldi: la Regione comprerà i condizionatori
gcbiakmw su Lo spinello fa male
Rita Campiotti su Torna IceOut, qual è la vostra gelateria preferita?














Accedi o registrati per commentare questo articolo.
L'email è richiesta ma non verrà mostrata ai visitatori. Il contenuto di questo commento esprime il pensiero dell'autore e non rappresenta la linea editoriale di VareseNews.it, che rimane autonoma e indipendente. I messaggi inclusi nei commenti non sono testi giornalistici, ma post inviati dai singoli lettori che possono essere automaticamente pubblicati senza filtro preventivo. I commenti che includano uno o più link a siti esterni verranno rimossi in automatico dal sistema.